Alteração de edifício para habitação multifamiliar

Guimarães - Portugal

O projeto encontra-se em fase de licenciamento.

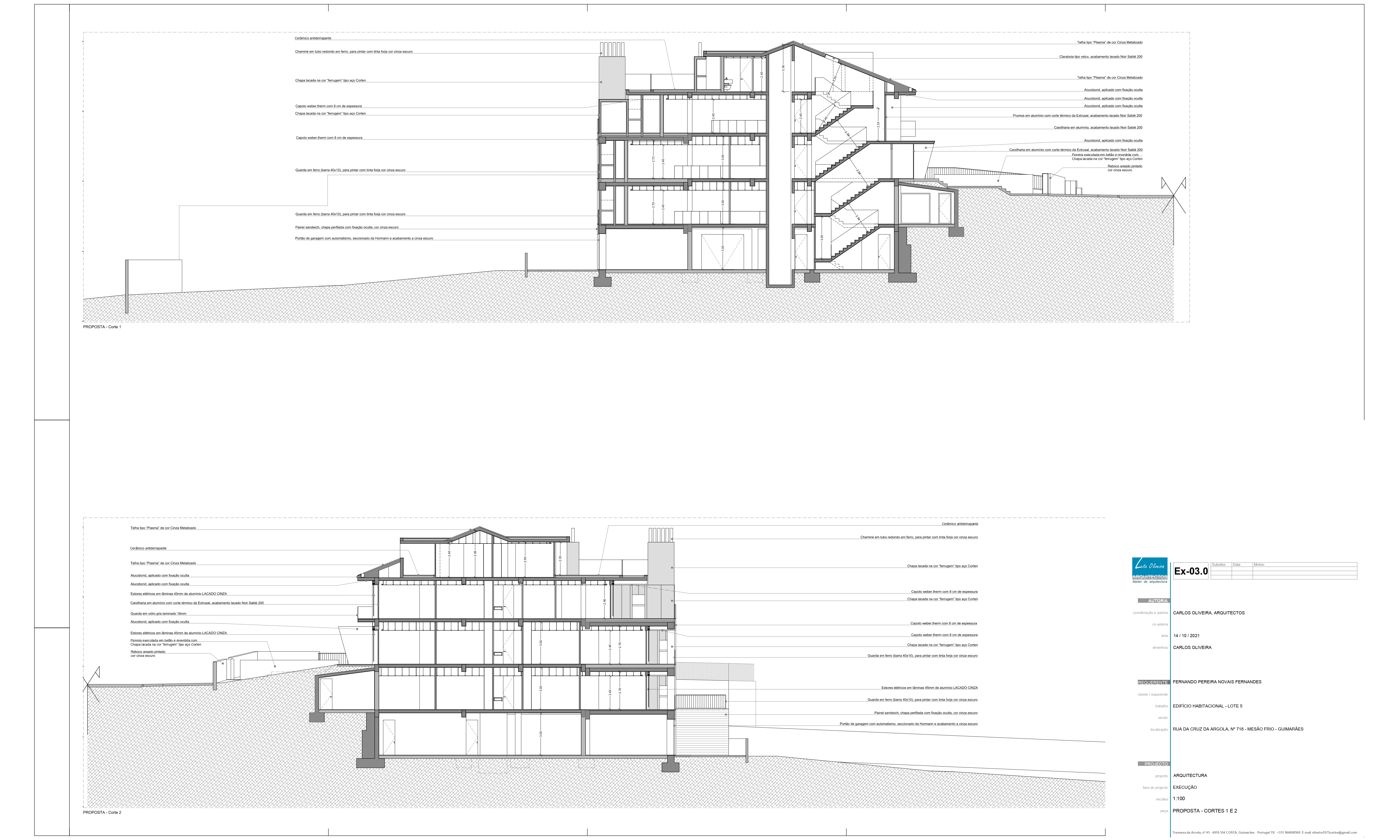
A proposta consiste em adaptar a edifício multifuncional existente, constituído por garagem, dois estabelecimentos comerciais, armazém e dois apartamentos num edifício totalmente habitacional constituído por sete unidades de ocupação. Basicamente, propomos alterar o estabelecimento comercial e armazém para habitação, bem como aproveitar as águas furtadas para criar mais uma unidade de ocupação, procurando adaptar todas as unidades de ocupação às novas exigências e modos habitar atuais, bem como propor uma linguagem mais contemporânea.

Tendo como objectivo principal a construção de edifício habitacional composto por unidades de habitação simples, funcionais e confortáveis, procurou-se formas e processos simples, valorização da luz natural e da relação com a paisagem, acabamentos práticos e simples. O edifício será construído baseado em alterações, demolições e integração com o existente, de modo a concretizar o projecto geral de arquietctura.

O funcionamento é bastante intuitivo e versátil. O acesso pedonal, bem como o e acesso automóvel, continuam as ser feitos a partir da via habilitante. O acesso automóvel é precedido de uma rampa que serve as garagens/aparcamentos do piso -2 (subcave). O acesso pedonal é precedido de um percurso que liga à entrada principal do edifício. A partir da entrada principal do edifício surge uma antecâmara que antecede os acessos (escadas+elevador) que servem todos os pisos e as distribuições para as unidades de habitação. A relação com o exterior é bastante valorizada, sempre que possível abrindo-se de forma premeditada, convidando as pessoas a sair e aproveitar a continuidade do espaço como complemento do interior, sempre com privacidade.