Moradia bifamiliar

Guimarães - Portugal

O projeto encontra-se em fase de licenciamento.

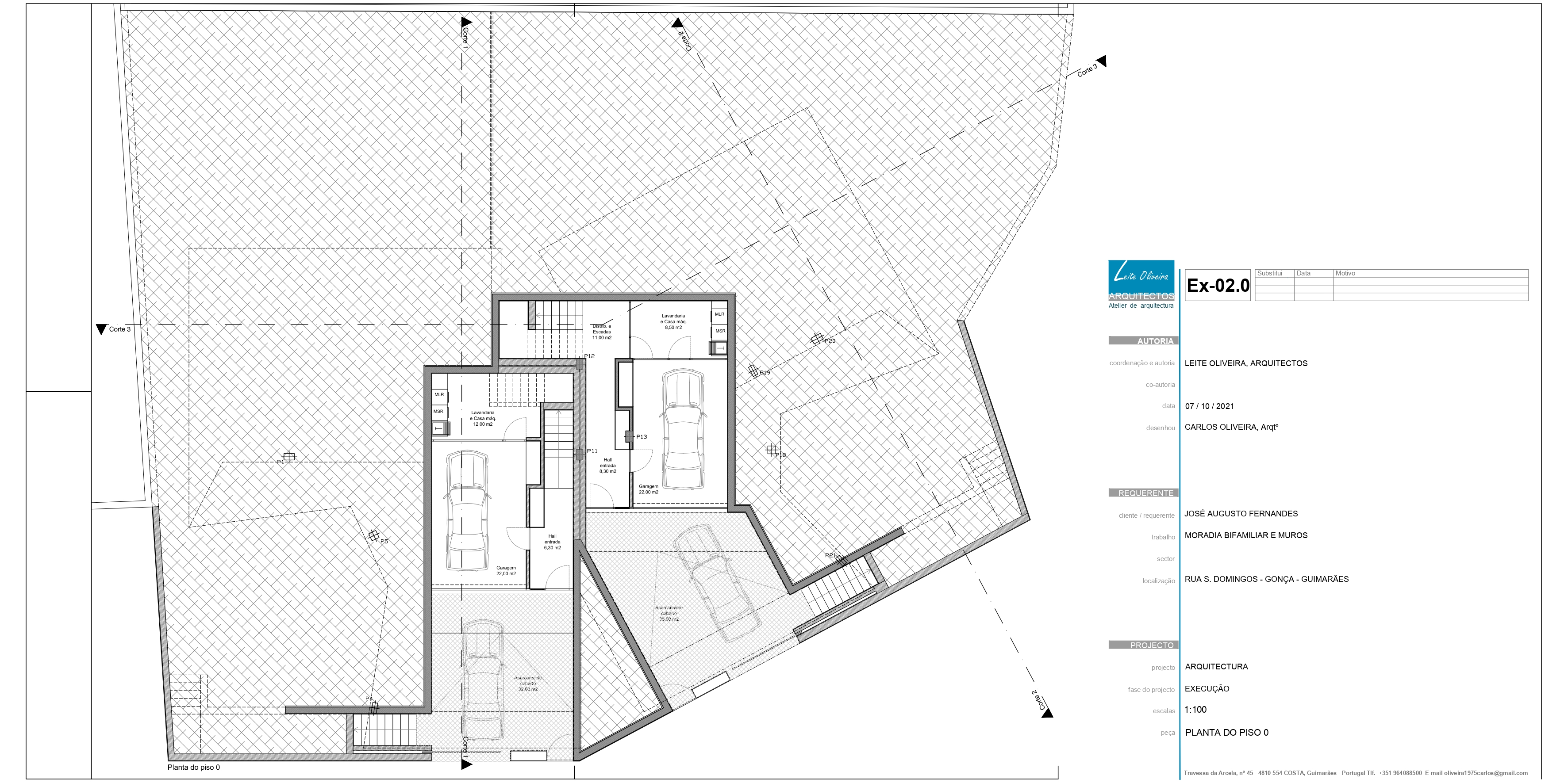
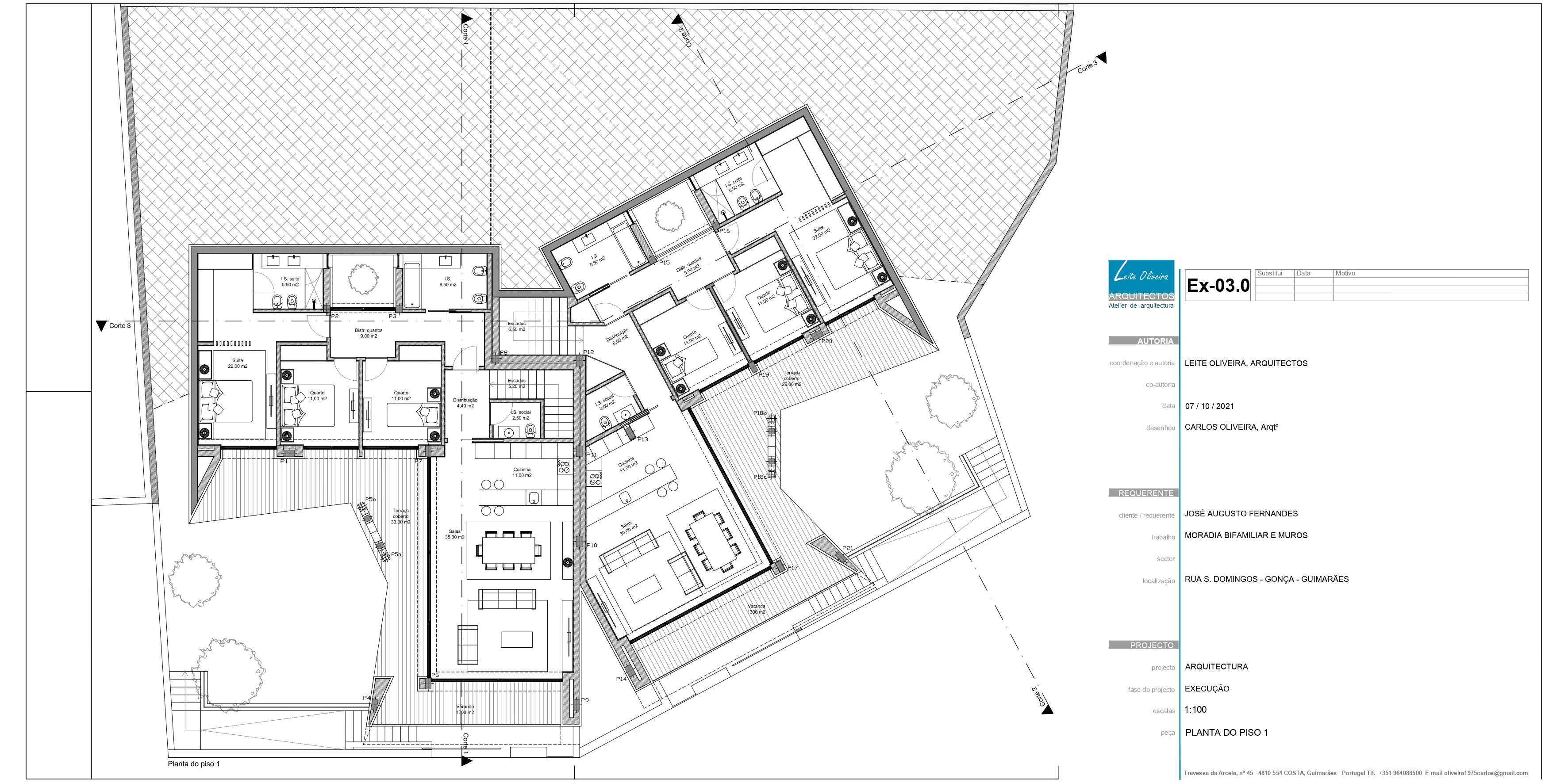
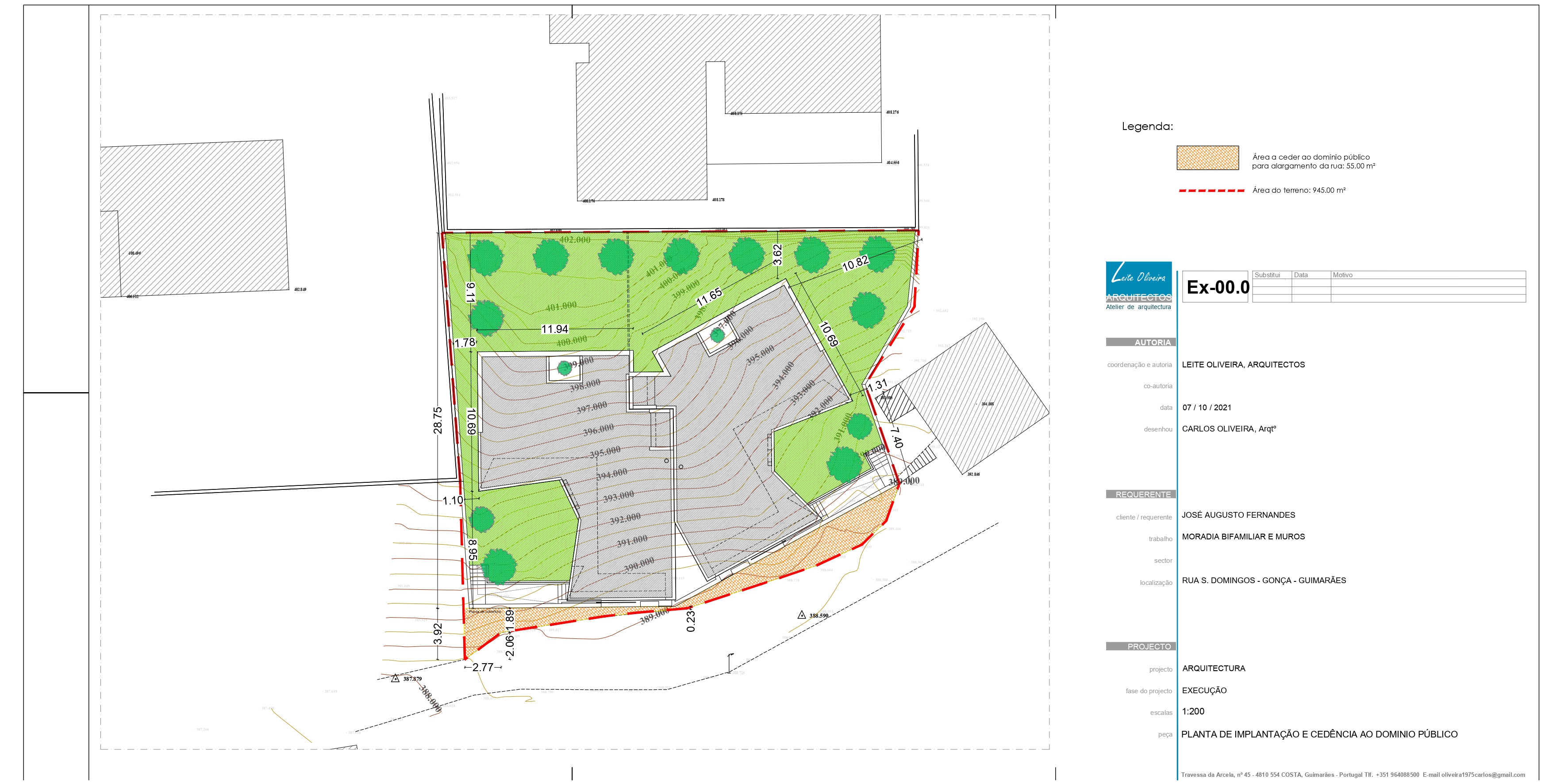
O projecto visa a construção de uma moradia bifamiliar composta por duas habitações tipo T3. Tendo em conta a morfologia bastante acidentada do terreno e no sentido de evitar uma grande movimentação de terras, propomos a implantação do edifício junto da rua e diminuir ao volume de construção no piso inferior. Propomos também construir um muro de suporte na continuidade dos muretes das platibandas, com mais expressão a Norte de modo a adaptar-se à morfologia do terreno. Este muro permite “encaixar a construção no terreno e criar uma plataforma ao nível do piso superior. Partindo das premissas anteriormente descritas e das pretensões do requerente, propomos um edifício composto por dois pisos, encaixado no terreno, em que a imagem assenta na sobreposição de volumes que correspondem a ocupações distintas. Face à topografia do terreno e de modo a evitar um desaterro ainda maior, a cave nasce cerca 1,00 m acima da cota da rua e encaixada no terreno nos quadrantes Norte, Nascente e Poente. O piso superior assenta sobre este e também se encaixa parcialmente no terreno nos mesmos quadrantes. O piso superior das habitações fecha-se a Norte, abrindo-se para Sul, Nascente e Poente onde tem uma franca comunicação com o exterior e com a paisagem. Os acessos, automóvel e pedonal de ambas as habitações são feitos a Sul a partir da via habilitante. O funcionamento é bastante intuitivo e versátil, apresenta uma distribuição por usos e uma relação com o espaço exterior bastante valorizada, embora controlada devido à morfologia do terreno.